Drake WASHLET + C2 Two-Piece Toilet - 1.28 GPF - Universal Height
Description
Description
The WASHLET+ system neatly conceals the WASHLET power cord and water supply hose for a clean installation. The system is comprised of a WASHLET bidet seat and toilet which are specially designed for a seamless installation that compliments your bathroom's décor.
Features
• High-tech Electronic Bidet Seat and Toilet Combination
• Concealed supply connection for seamless installation
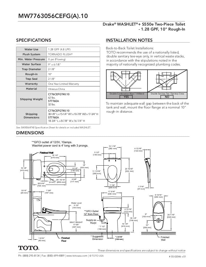
• TORNADO FLUSH system
• CEFIONTECT ceramic glaze minimizes waste from sticking to porous ceramic surfaces
• Elongated front bowl and tank set with WASHLET
• 12" or 10" Rough-in (See Option above)
• Universal Height
• EWATER+ on wand and bowl
• PREMIST of bowl before use
• Auto open/close lid
• Remote control operated
• Front and rear warm water cleansing with adjustable temperature and pressure control
• Heated seat with temperature control
• Automatic air deodorizer
• Warm Air Dryer
• 2 User memory
• Night light
• Quick release feature
• Chrome plated trip lever included
• Auto Flush Optional (See Available Options above)
Certifications
• WaterSense : Toto Tip : A partnership program sponsored by EPA, seeking to protect the future of our nation's water supply by promoting water efficiency and enhancing the market for water-efficient products.
• CalGreen : Toto Tip : TOTO has always been an industry leader in green technology. TOTO currently offers a number of products that meet the new California Green Buildings Standards Code (known as CalGreen). These include toilets, faucets, showers, flush valves, and urinals all with superior performance.
• California Proposition 65 : Toto Tip : Complies with California Proposition 65 warning requirements.
• Universal Height : Toto Tip : Takes into account people of all ages and abilities, so that everyone's bathroom experience is elegant and accessible every time.
• ADA Compliant : Toto Tip : Serves people of every age and capability, without additional adaptation or specialization, and so can be enjoyed by everyone, always optimized for the best experience.
Highlights
• CEFIONTECT : Toto Tip : CEFIONTECT ceramic glaze creates an extraordinarily smooth surface that helps keep the bowl cleaner longer.
• EWATER+ : Toto Tip : After each flush, EWATER+ mists on the wand and toilet bowl, reducing the need for harsh cleaning chemicals.
• TORNADO FLUSH : Toto Tip : The TORNADO FLUSH features two powerful nozzles that create a centrifugal, cyclonic rinsing action which reduces waste buildup and keeps the bowl cleaner. This high-efficiency system is more effective in one flush than most toilets are with multiple flushes.
Smart Fact
TOTO People-Centered Design Smart Fact : This Draketoilet uses CEFIONTECT ceramic glaze, which creates an extraordinarily smooth, ion-barrier surface to help keep the bowl cleaner with every flush.
Installation Specifications:
Rough In Options: 10|12
Bathroom Specifications:
Toilet Type: Two Piece Toilets
Additional Specifications:
Trip Lever Options: Matte Black|Polished Chrome
-
Length-
-
Width-
-
Height-


