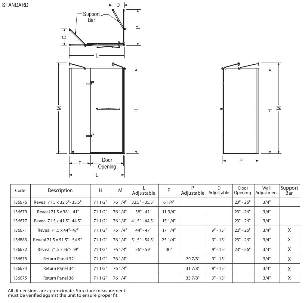
Reveal 71 32 ½-35 ½ x 71 ½ in. 8mm Pivot Shower Door for Alcove Installation with Clear glass in Chrome
Description
Description
- 71 1/2 in. high luxury clear tempered glass, 5/16 in. (8 mm)
- Unique MAAX Patented hinge - allows for 3 in. lateral adjustment
- Reversible door for left or right opening
- For installation on acrylic walls, ceramic and Utile
- For a corner shower: combine a return panel and an alcove door
- Available in 3 finishes: Chrome, Brushed Nickel and Dark Bronze
Maax Attribute
- Door Type : Pivot
- Frame Type : Frameless
- Installation Type : Alcove
- Residential Warranty : 10 Years
Materials & Finish Specifications:
Glass Pattern: Clear
-
Length-
-
Width-
-
Height-










