Carlyle II One-Piece Toilet, 1.28 GPF,WASHLET + Connection
Description
Description
This elegant one-piece toilet features an elongated bowl and skirted base. Modern in design, it offers our powerful and efficient Tornado Flush flushing system (see Smartfact below). Universal height
Features
- CEFIONTECT ceramic glaze
- Tornado Flush Flushing System
- Computer Designed, Fully Glazed Trapway
- Elongated Bowl with SoftClose Seat
- Skirted Design
- Chrome Trip Lever
- Universal Height
- ADA Compliant
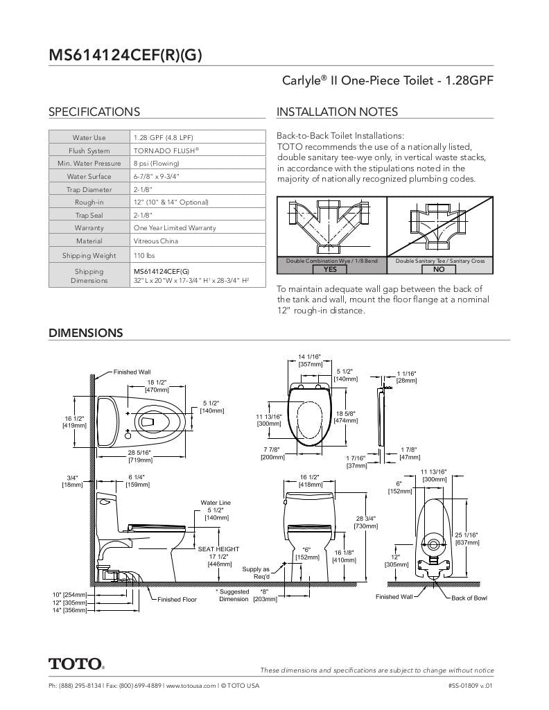
- 12" Rough-In (10" or 14" optional)
Certifications
- ADA Compliant : Toto Tip : Serves people of every age and capability, without additional adaptation or specialization, and so can be enjoyed by everyone, always optimized for the best experience.
- WaterSense : Toto Tip : A partnership program sponsored by EPA, seeking to protect the future of our nation's water supply by promoting water efficiency and enhancing the market for water-efficient products.
- Universal Height : Toto Tip : Takes into account people of all ages and abilities, so that everyone's bathroom experience is elegant and accessible every time.
- CalGreen : Toto Tip : TOTO has always been an industry leader in green technology. TOTO currently offers a number of products that meet the new California Green Buildings Standards Code (known as CalGreen). These include toilets, faucets, showers, flush valves, and urinals all with superior performance.
- California Proposition 65 : Toto Tip : Complies with California Proposition 65 warning requirements.
Highlights
- CEFIONTECT : Toto Tip : CEFIONTECT ceramic glaze creates an extraordinarily smooth surface that helps keep the bowl cleaner longer.
- TORNADO FLUSH : Toto Tip : The TORNADO FLUSH features two powerful nozzles that create a centrifugal, cyclonic rinsing action which reduces waste buildup and keeps the bowl cleaner. This high-efficiency system is more effective in one flush than most toilets are with multiple flushes.
- SKIRTED DESIGN : Toto Tip : The modern and elegant skirted design conceals the trapway and features smooth lines that are easy to clean and maintain.
Smart Fact
TOTO People-Centered Design Smart Fact : The Carlyle II One-Piece HET Toilet employs our Tornado Flushing Technology, which siphons water with two powerful nozzles, harnessing the power of water and gravity to maximize cleaning and use water more efficiently.
Installation Specifications:
Rough In Options: 10|12|14
Bathroom Specifications:
Toilet Type: One Piece Toilets
Additional Specifications:
Trip Lever Options: Matte Black|Polished Chrome
-
Length-
-
Width-
-
Height-













