Exhibit 6030 IFS AFR Acrylic Alcove Left-Hand Drain Bathtub in White
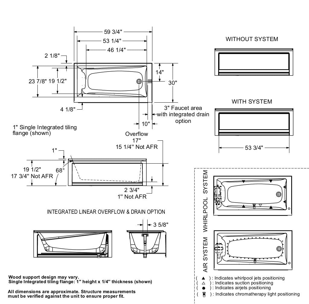
Description
Description
- Rectangular shape bathtub in alcove installation
- Above-the-Floor Rough (AFR) or not
- Minimalist look with discreet armrests and textured floor
- Deck for faucet available
- When equipped with a system, the unit comes with an access panel
- Available with an optional pre-installed white linear overflow for non-high rise construction
Maax Attribute
- Above-the-Floor Rough : Yes
- Installation Type : Alcove
- Material : Acrylic
- Residential Warranty : 25 Years
Sink & Plumbing Specifications:
Drain Position: Left|Right
Additional Specifications:
System: Soaker - no system|Aeroeffect|Combined Whirlpool & Aeroeffect|Whirlpool
-
Length-
-
Width-
-
Height-







